
HABITATION G02
Programme / Typologie : Surélévation d’un Logement individuel
Commanditaire : M. et Mme Giraud
Organisateur : N.C.
Type de commande : Privée
Partenaires : N.C.
Type de mission : Partielle
Situation / Lieu : Fontenay-aux-Roses (92260)
Budget : N.C.
Surface : 184,6 m2 (SDP)
Date : 2019
Projet de surélévation d’un habitat individuel dans une copropriété horizontale.
Description et parti pris
C’était une maison de forme classique avec une toiture à deux pans en tuiles plates et des murs en crépi blanc cassé. Elle ne dénotait pas dans le paysage par sa forme ou son apparence. Seul son atrium intérieur avec un rez-de-jardin en partie enterré lui donnait une personnalité particulière.
Sur la même parcelle il existait une autre maison ce qui en faisait une copropriété horizontale. La maison n’étant donc pas en totalité la propriété de la maitrise d’ouvrage.
Habiter la verticalité,
Le rez-de-jardin étant à moitié enterré et la façade principale étant orientée au Nord, il fallait trouver une solution simple et efficace pour apporter de la lumière au centre de la maison tout en offrant une sensation d’évidence aux choix spatiaux qui ont été réalisés.
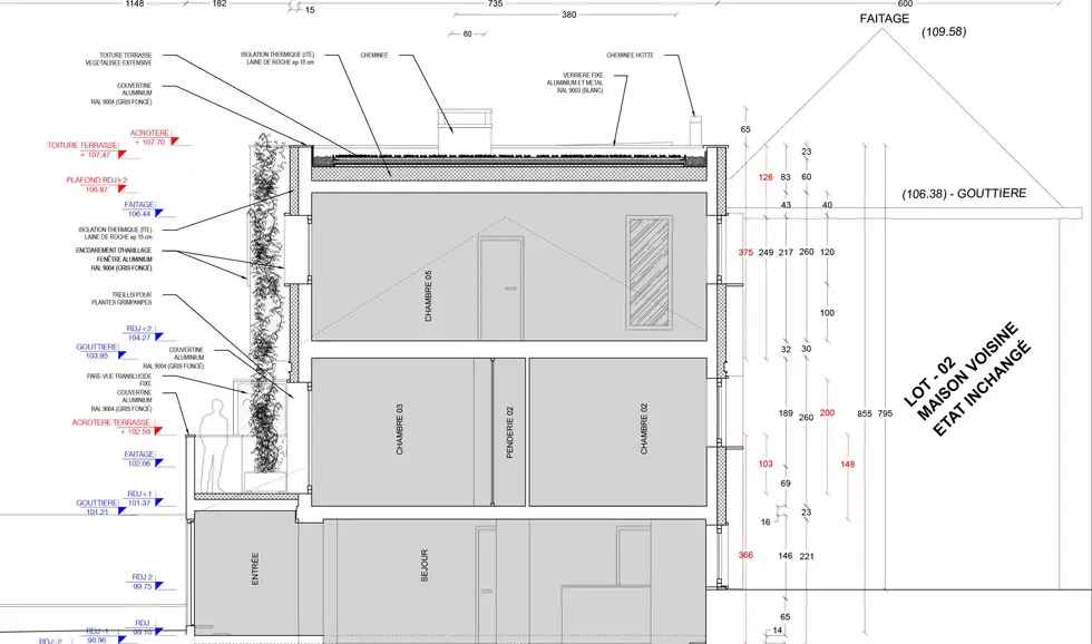
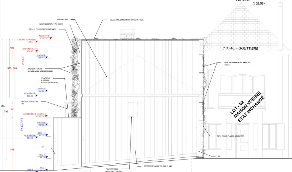
Il existait une sorte d’atrium mal assumé dans la maison existante. Un atrium fabriquant un espace résiduel mal exploité et peu utile. Le nouvel atrium augmenté en volume et ouvert en toiture, avec une verrière, permet désormais de faire descendre la lumière, mais aussi par son remaniement d’offrir un espace qualifié qui met en valeur l’escalier hélicoïdal desservant les différents niveaux.
Au dernier étage un niveau entier est agrandi et réaménagé en déposant la toiture à deux pans pour une toiture plate. Le volume chambre principal sortant de la façade sur rue pour permettre la création en partie arrière d’une courette technique et facilite la relation avec la maison mitoyenne de la copropriété en partie arrière.
Au rez-de-jardin l’ancienne extension du séjour est allongée jusqu’au garage pour l’agrandir et est recouverte d’une terrasse pour les chambres du premier étage.
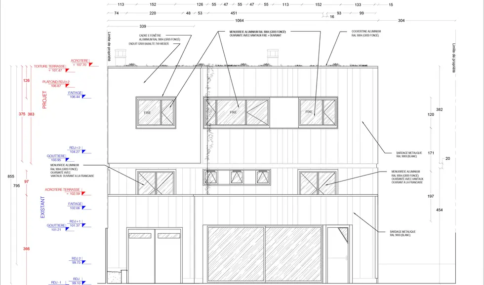
Un bardage métallique blanc en façade, avec une trame aléatoire, recouvrant une isolation thermique extérieure est mise en place.

























